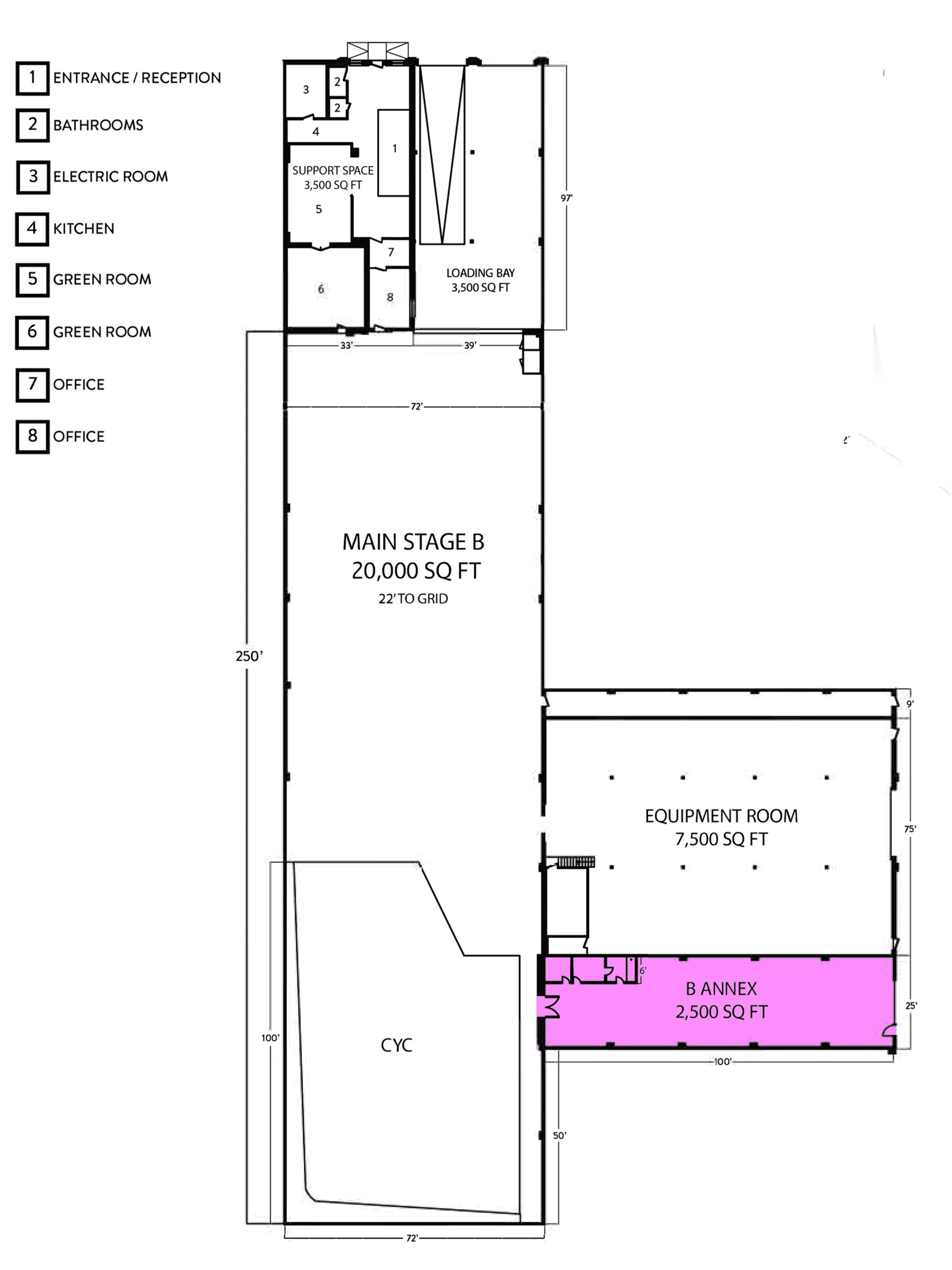
ANNEX B

2,500 SQ FT

BRICK SHOOT SPACE / CLIENT AREA / CATERING

SUPPORT SPACE

    • 2,500 sq ft studio, support or catering space

    • Drive-in access

    • 300 amps of power (100-amp 3-phase)

    • Ceiling height: 19 ft from floor to bottom of the beams

    • 10 tons of silent heating and air conditioning

    • Two luxurious bathrooms and one shower

    • High-speed internet

    • Textured brick walls and skylights

    • Direct connection to Stage B and Warehouse B

 

Previous
Previous

Main Stage B

Next
Next

Warehouse B